Save
Ask
Tour
Hide
Share
$650,000
1 Day On Site
534 HOBART PLACE NWWASHINGTON, DC20001
For Sale|Townhouse|Active
2
Beds
2
Total Baths
1
Full Bath
1
Partial Bath
1,400
SqFt
$464
/SqFt
1916
Built
Subdivision:
COLUMBIA HEIGHTS
County:
WASHINGTON
Listing courtesy of NextHome Envision
Call Now: 443.632.3000
Is this the listing for you? We can help make it yours.
443.632.3000

Save
Ask
Tour
Hide
Share
Mortgage Calculator
Monthly Payment (Est.)
$2,966Calculator powered by Showcase IDX, a Constellation1 Company. Copyright ©2026 Information is deemed reliable but not guaranteed.
Photos
Map
Nearby Listings
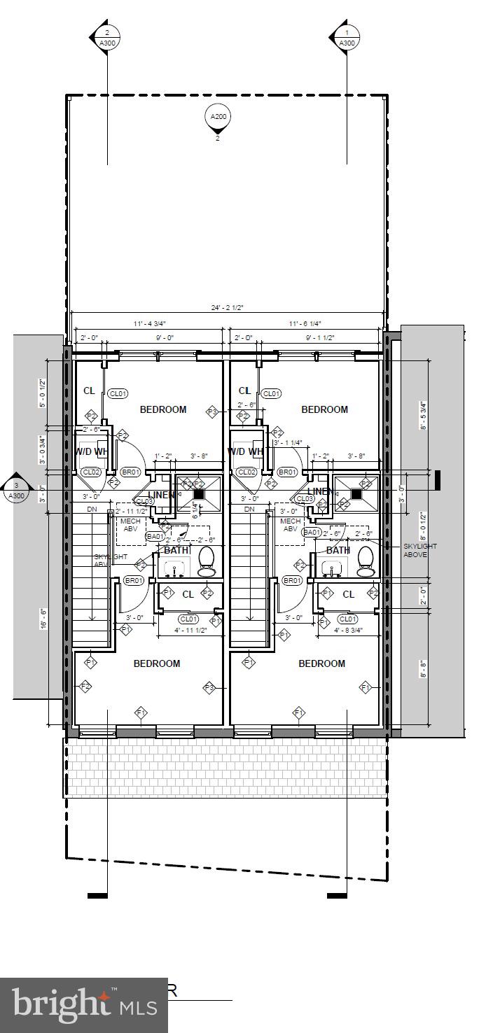
Upcoming luxury new construction opportunity. This beautifully designed residence will offer 2 bedrooms, 1.5 bathrooms, and rear parking, with an anticipated completion timeline of 6–12 months. Buyers may have the opportunity to reserve the home while construction is underway. More details, including plans and finishes, will be released as the project progresses. Contact the listing agent for additional information.
Save
Ask
Tour
Hide
Share
Listing Snapshot
Price
$650,000
Days On Site
1 Day
Bedrooms
2
Inside Area (SqFt)
1,400 sqft
Total Baths
2
Full Baths
1
Partial Baths
1
Lot Size
0.03 Acres
Year Built
1916
MLS® Number
DCDC2248944
Status
Active
Property Tax
$35,451
HOA/Condo/Coop Fees
N/A
Sq Ft Source
Estimated
Friends & Family
React
Comment
Invite
Recent Activity
| yesterday | Listing first seen on site | |
| yesterday | Listing updated with changes from the MLS® |
General Features
Acres
0.03
Foundation
Other
Levels
Two
Parking
Driveway
Property Condition
New Construction
Property Sub Type
Townhouse
Sewer
Public Sewer
Special Circumstances
Standard
SqFt Above
1400
SqFt Total
1400
Style
Traditional
Water Source
Public
Zoning
R4
Interior Features
Appliances
CooktopElectric Water HeaterDishwasherDisposalDryerRefrigeratorStainless Steel Appliance(s)WasherMicrowave
Cooling
Ceiling Fan(s)NoneElectric
Flooring
Wood
Heating
ElectricHot Water
Interior
Eat-in KitchenCeiling Fan(s)Kitchen IslandOpen Floorplan
Window Features
Skylight(s)
Save
Ask
Tour
Hide
Share
Exterior Features
Construction Details
Brick
Pool Features
None
Roof
Shingle
Windows/Doors
Skylight(s)
Community Features
School District
DISTRICT OF COLUMBIA PUBLIC SCHOOLS
Schools
School District
DISTRICT OF COLUMBIA PUBLIC SCHOOLS
Elementary School
Unknown
Middle School
Unknown
High School
Unknown
Listing courtesy of NextHome Envision

The real estate listing information is provided by Bright MLS is for the consumer's personal, non-commercial use and may not be used for any purpose other than to identify prospective properties consumer may be interested in purchasing. Any information relating to real estate for sale or lease referenced on this web site comes from the Internet Data Exchange (IDX) program of the Bright MLS. This web site references real estate listing(s) held by a brokerage firm other than the broker and/or agent who owns this web site. The accuracy of all information is deemed reliable but not guaranteed and should be personally verified through personal inspection by and/or with the appropriate professionals. Properties in listings may have been sold or may no longer be available. The data contained herein is copyrighted by Bright MLS and is protected by all applicable copyright laws. Any unauthorized collection or dissemination of this information is in violation of copyright laws and is strictly prohibited. Copyright © 2020 Bright MLS. All rights reserved.

The real estate listing information is provided by Bright MLS is for the consumer's personal, non-commercial use and may not be used for any purpose other than to identify prospective properties consumer may be interested in purchasing. Any information relating to real estate for sale or lease referenced on this web site comes from the Internet Data Exchange (IDX) program of the Bright MLS. This web site references real estate listing(s) held by a brokerage firm other than the broker and/or agent who owns this web site. The accuracy of all information is deemed reliable but not guaranteed and should be personally verified through personal inspection by and/or with the appropriate professionals. Properties in listings may have been sold or may no longer be available. The data contained herein is copyrighted by Bright MLS and is protected by all applicable copyright laws. Any unauthorized collection or dissemination of this information is in violation of copyright laws and is strictly prohibited. Copyright © 2020 Bright MLS. All rights reserved.
Neighborhood & Commute
Source: Walkscore
Save
Ask
Tour
Hide
Share


Did you know? You can invite friends and family to your search. They can join your search, rate and discuss listings with you.