3141 CENTRAL AVENUE NEWASHINGTON, DC20018




Mortgage Calculator
Monthly Payment (Est.)
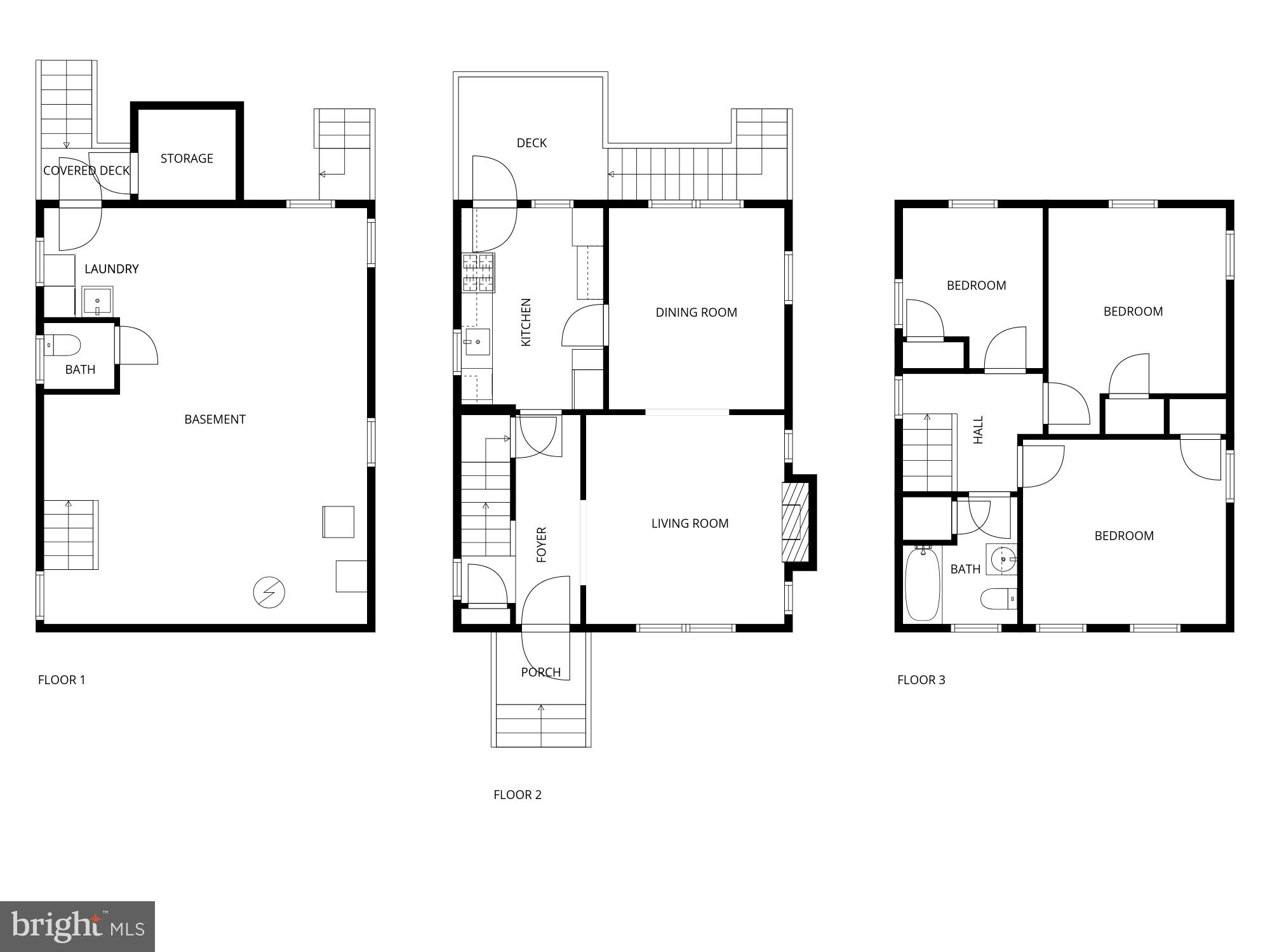
$2,505Discover the good life in Woodridge with this charming 3BD/1.5BA brick home complemented with one incredible, expansive private backyard. Throughout the home are original wood floors, fixtures and finishes (including doors and trim), which add a touch of elegance to a delightful living room (with brick fireplace) and light-filled dining room perfect for entertaining and everyday meals alike. The kitchen leads out to the top of a two-tiered back deck looking out on a terraced backyard that stretches the length of houses. Just imagine the landscaping potential and all the seasonal adventures that await you! Upstairs are three bedrooms that share a full bathroom and tree-filled views of the neighborhood. The unfinished basement (with half bath) is perfect for storage or a home gym—and with a little imagination and design could be transformed into a comfy entertainment room. And when you’re ready to explore the neighborhood, you’re just a short walk along neighborhood streets to Langdon Park Rec Center, Woodridge Library, Zeke’s Coffee, and the bustle of Rhode Island Avenue. •
| 3 weeks ago | Status changed to Pending | |
| 3 weeks ago | Listing updated with changes from the MLS® | |
| 4 weeks ago | Listing first seen on site |

The real estate listing information is provided by Bright MLS is for the consumer's personal, non-commercial use and may not be used for any purpose other than to identify prospective properties consumer may be interested in purchasing. Any information relating to real estate for sale or lease referenced on this web site comes from the Internet Data Exchange (IDX) program of the Bright MLS. This web site references real estate listing(s) held by a brokerage firm other than the broker and/or agent who owns this web site. The accuracy of all information is deemed reliable but not guaranteed and should be personally verified through personal inspection by and/or with the appropriate professionals. Properties in listings may have been sold or may no longer be available. The data contained herein is copyrighted by Bright MLS and is protected by all applicable copyright laws. Any unauthorized collection or dissemination of this information is in violation of copyright laws and is strictly prohibited. Copyright © 2020 Bright MLS. All rights reserved.


Did you know? You can invite friends and family to your search. They can join your search, rate and discuss listings with you.